5 / 5

当前位置: 首页 » 小区效果图 » 小区效果图 »竞地溯源阁-72.00平米二居室东南亚风格装修效果图 日期:2015-01-04    点击:5   

1
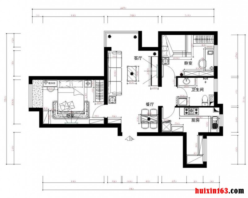
竞地溯源阁-72.00平米二居室东南亚风格装修效果图- 平面图
小区效果图说明

竞地溯源阁公建配套:中餐厅;超市;标志建筑:四公里江南立交公园绿化:南山风景区 。周边公园自然景观:南山风景区。就医条件:重庆市三级甲等医院重庆市第一人民医院、重庆市二级甲等医院南岸区医院。周边医院就学条件:重庆市市级重点中学南坪中学、重庆市市级高校教育学院、重庆市级重点大学商务部直属高校工商大学、重庆市市级重点中学110中学。

这是一套72平米的二居室,装饰风格为东南亚风格,采用全包的方式装修,预算费用为10万。

在客厅的顶面上采用了两圈深胡桃木色的装饰的边框,在中间夹杂着一些灯带的设计,中央的位置悬挂着一盏铁艺的吊灯,在周边的位置是一圈明亮的射灯,在墙面上装饰着一些风格典雅的油画,电视背景墙的设计比较的素净。具有浮雕花纹的电视柜以及电视背景墙的左边的深色实木的装饰给人一种非常自然纯朴的感觉。在地面上是一些复古实木板的装饰,营造出优雅的氛围。

更多»推荐小区效果图
 
0条 [查看全部]  相关评论